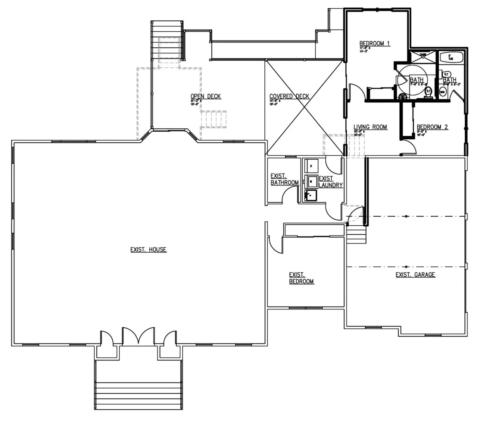
Accessibility Project

Accessibility Project

This accessibility-driven design explores how human-centered thinking can improve the way people interact with physical spaces. Through an iterative process guided by direct user feedback, the project aimed to design an accessible living space for a wheelchair user and his caregiver. The final design reflects how UX principles such as empathy, usability, and iteration extend beyond screens and into everyday life.

Program Requirements

2-bedroom addition, both with en suite bathrooms

1 bathroom must be ADA-compliant as the user is in a wheelchair

Addition should be off the rear of the house

New, larger deck for entertaining

Design Option 1

Larger deck with ADA ramp

Smaller laundry to create a hallway leading into the addition

Design Option 2

Larger deck with ADA ramp

Hallway built into the garage to connect the addition

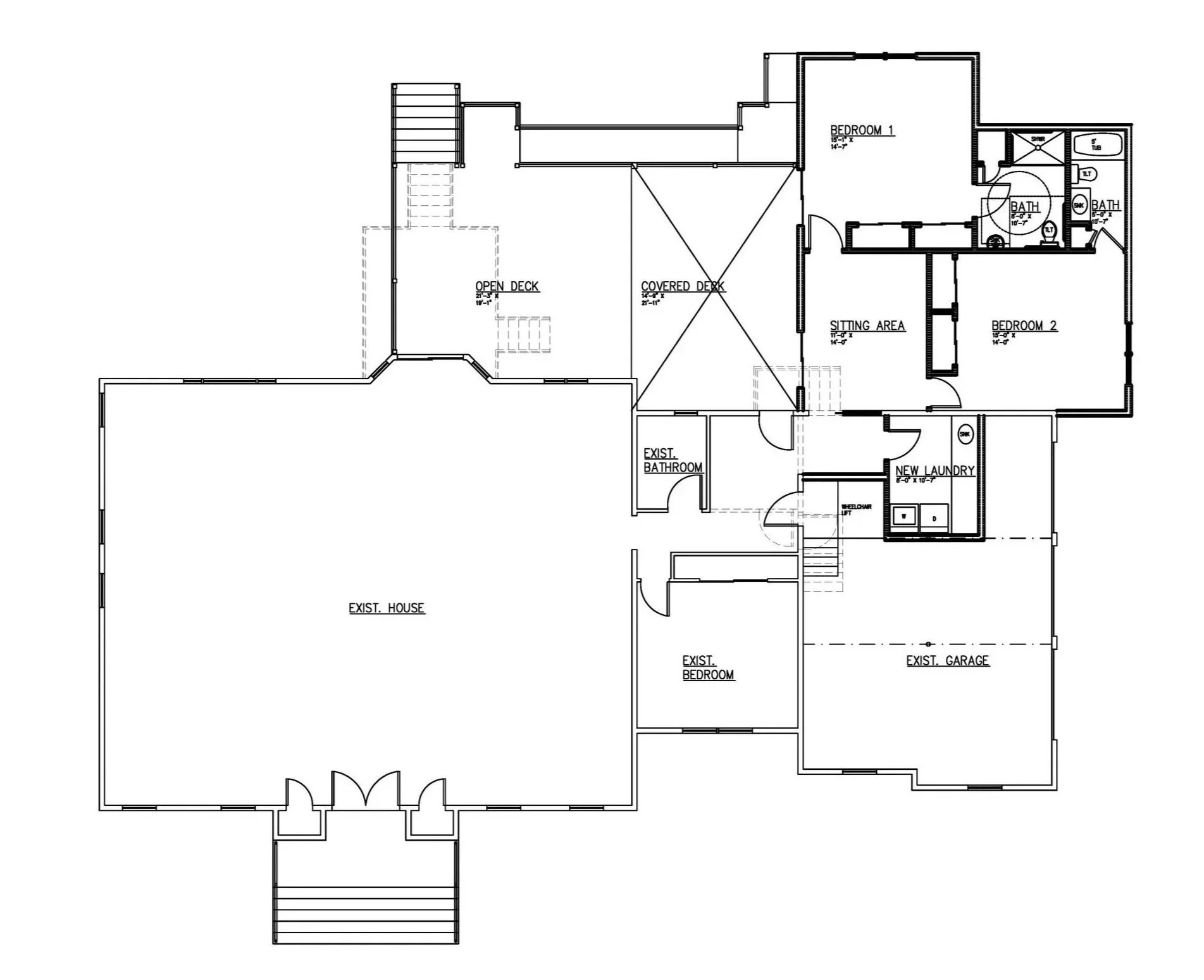
Program Redefined: Site Visit to Understand User Needs

Larger bedrooms

Chair lift in the garage

Larger laundry room

Office space

Re-design Option 1

Prioritize office space by removing

the third garage door bay

Larger bedrooms

Integrated wheelchair lift

Prioritize the laundry room by relocating it to the garage while still allowing for storage space in the third bay

Larger bedrooms

Integrated wheelchair lift

Relief zone which opens up the space

Existing Conditions

Re-design Option 2

Final Design